MENU

Dietro l'angolo

TO-9Z3URY

Il progetto riflette sul tema dell’inserimento “in continuità” con il contesto urbano consolidato e allo stesso tempo offre uno scenario flessibile ed aperto ai cambiamenti economico-sociali del futuro. Come in un palazzo rinascimentale la facciata è slegata da ciò che le sta dietro ed ambisce a relazionarsi con la città ed il suo intorno, come un elemento resiliente e prezioso, in muratura portante rivestito in mattoni facciavista. L’interno invece è una struttura in legno, modulare e leggera, che garantisce il rispetto dei più elevati standard energetici e una certa flessibilità ad accomodare cambiamenti nel corso del tempo.
La declinazione dell’edificio come residenza cooperativa e potenziale hub per start-up, mira a proiettare l’intervento nella Torino del futuro, giovane e dinamica.



Tavole



G00 - Manifesto



T01 - Urbanità

La strategia urbana si pone l’obiettivo di dare vita ad un progetto che sappia inserirsi lungo le tracce della città storica, ed allo stesso tempo sia in grado di soddisfarne le esigenze contemporanee e future. Tale ambizione è messa in atto attraverso il ragionamento su tre aspetti cardine: la dimensione morfologica, la componente funzionale e l’impatto ambientale dell’intervento.
Dal punto di vista morfologico il disegno del progetto prevede un'attenta considerazione del contesto urbano esistente del quartiere “Quadrilatero” e della tipologia architettonica a blocco con cortile, con l’introduzione di alcune di alcune soluzioni specifiche.
Il gesto principale è l’allineamento del nuovo blocco con il filo degli edifici esistenti presenti nella porzione meridionale del sito, al fine di offrire un grande vuoto longitudinale che funga da nuovo spazio pubblico all’interno del quartiere e metta in comunicazione l’edificio pubblico a nord (Anagrafe, uffici pubblici e asilo nido) e l’Archivio di Stato con la nuova porzione di servizi commerciali presenti al piano terra dell’edificio.
La posizione strategica del sito, unita alla crescente enfasi di Torino sullo sviluppo di un ecosistema di start-up, hanno spinto il progetto a prevedere un certo grado di polifunzionalità. A tale scopo una porzione dell’edificio è destinata ad ospitare un incubatore d’impresa che sia di supporto a nuove attività, offrendo spazi di lavoro adattabili come co-working, uffici, atelier e laboratori a tariffe agevolate per giovani imprenditori; tale scelta ha lo scopo di stimolare un’offerta che risponda alle esigenze di attrarre nuovi giovani e mettere a sistema l’intervento come nucleo vitale nella rete imprenditoriale della città.
Infine, dal punto di vista ambientale, il progetto prevede una consistente porzione di spazi verdi, sia all'interno della corte che lungo gli spazi pubblici adiacenti e si concentra sulla massimizzazione delle superfici permeabili al fine di combattere efficacemente l'effetto isola di calore, di favorire l’assorbimento naturale delle acque meteoriche nel terreno rispettando l’equilibrio idrogeologico del sito e migliorando la qualità della vita urbana.
Attraverso queste strategie il progetto mira ad un'integrazione armoniosa con il contesto urbano, promuovendo al contempo la vivibilità, l'interazione sociale e l'innovazione economica.



G01 - Urbanità



T02 - Città pubblica/privata

Il mix tipologico, funzionale e sociale, crea i presupposti per dare vita ad uno spazio attivo ed intenso ed ambisce a creare una comunità solidale ed eterogenea. Al contempo l'integrazione di funzioni a supporto delle startup locali ripensa il luogo come fulcro di attrazione urbana per la città.
Al disegno di uno spazio pubblico chiaro e ben connesso con il suo intorno, si succedono una serie di gesti minuti, alla scala dell’edificio, che marcano l’ingresso nella corte attraverso l’arretramento dei quattro angoli. Queste situazioni, che nascono da esigenze pratiche: il bisogno di rispettare le distanze dei fronti nella parte sud-occidentale dell’edificio, la necessità di integrare il padiglione storico presente nel bordo nord-orientale del sito, si trasformano in opportunità per il nuovo progetto, in grado di creare una ricca articolazione spaziale e una graduale transizione dallo spazio pubblico a quello privato.
Nella definizione dello spazio pubblico non concorrono solo il disegno del suolo e la forma del vuoto, ma anche il disegno della facciata. In questo senso la facciata dell’edificio è interpretata come un elemento indipendente dal suo interno, un’interfaccia con la città, responsabile della qualità dello spazio pubblico.
Per questo viene pensata come un muro monolitico in muratura rivestita con mattoni faccia a vista, che, attraverso la sua materialità ed espressività, si relaziona con l’immediato intorno e guarda al patrimonio architettonico torinese del secondo dopoguerra, composto tra gli altri dagli edifici di Luzi e Jaretti, Gabetti e Isola, BBPR.
Al suo interno il tema della casa cooperativa è affrontato partendo dal presupposto che, per garantire spazi di condivisione e collettivi efficaci, si deve prima di tutto garantire una sfera privata chiara e ben definita. Su questo principio si basa l’organizzazione degli appartamenti che sono serviti da cinque vani scala posti lungo la facciata interna e accessibili dal cortile, che distribuiscono gli appartamenti attraverso una lobby interna. La manica posta sud, la cui destinazione d’uso è dedicata ad attività lavorative ha una distribuzione ed accesso indipendente rispetto alla parte residenziale dell’edificio, per tutelare la dimensione abitativa ed allo stesso tempo rinforzarne il carattere pubblico.



G02 - Città pubblica/privata



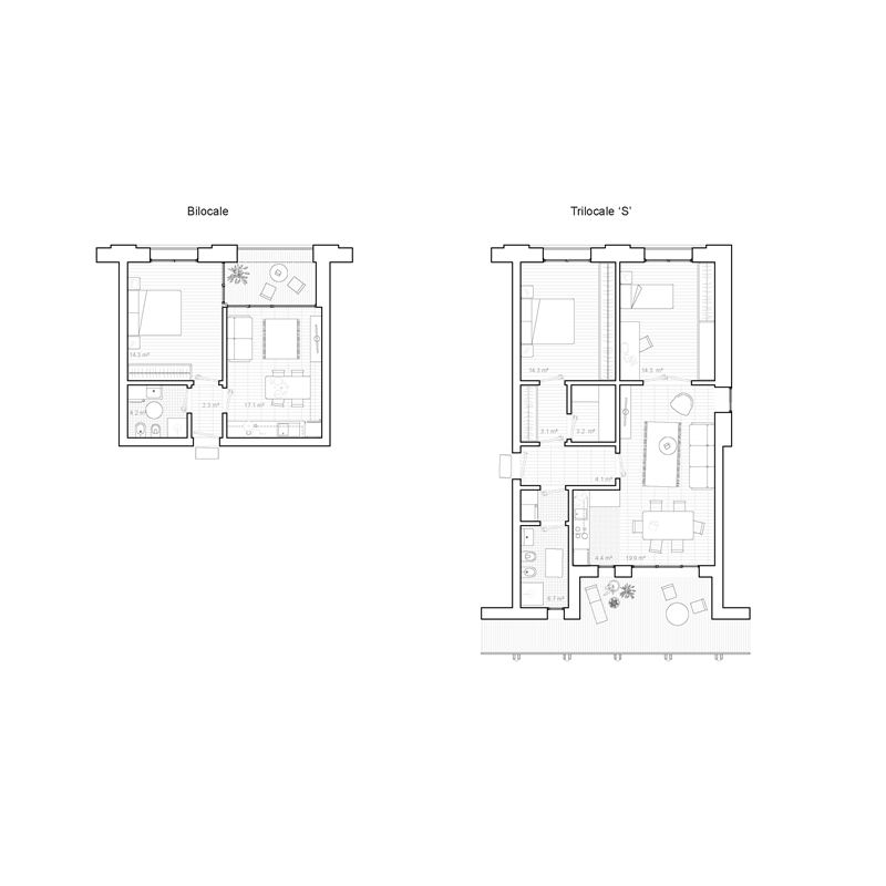
T03 - Abitare

Il progetto risponde alle esigenze della città di Torino di attrarre giovani single, coppie e nuclei di diverse dimensioni sviluppandosi attorno a quattro tipologie residenziali: bilocali, trilocali piccoli ‘S’, trilocali grandi ‘L’ con cucina abitabile e secondo bagno, e quadrilocali.
Il progetto si caratterizza per una tensione tra esterno (lato piazza e strada) ed interno (lato corte) attraverso l’utilizzo dei materiali e l’articolazione del volume. La struttura riprende la logica costruttiva e la modularità tipica degli edifici in legno, che si riflette poi nell’espressione degli interni con l’utilizzo di travi a vista.
Tutti gli appartamenti, per quanto possibile, rivolgono l’affaccio del soggiorno e della cucina verso la corte interna, in modo da rinforzarne il carattere informale e domestico. Su questo lato sono presenti porte finestre di dimensioni più grandi ed il rapporto tra interno ed esterno è mediato da grandi balconate che risolvono anche la relazione con gli appartamenti vicini e garantiscono, attraverso il sistema di tendaggi esterni integrati nella facciata, un’adeguata schermatura dai i raggi solari.
Allo stesso modo si è cercato, laddove possibile, di fornire alle abitazioni almeno un bagno con affaccio verso l’esterno in modo da garantire illuminazione e aerazione naturale per questi ambienti. Seppur gli appartamenti presentino uno schema lineare, sono stati introdotti alcuni accorgimenti per offrire una maggiore flessibilità e qualità abitativa: tutte le stanze lato città sono dotate di una metratura uguale, circa 14 mq, così da poter essere tra di loro intercambiabili e supportare diverse esigenze e tipologie di utilizzo.
Trilocali e quadrilocali presentano sempre una stanza accessibile direttamente dal soggiorno e che comunica con esso attraverso una porta a doppia anta per dare maggiore flessibilità allo spazio adiacente. Questo può divenire, in alcuni casi, l’estensione del soggiorno, può essere utilizzato come studio / spazio di lavoro per coloro che devono lavorare da casa, oppure può semplicemente essere utilizzato come camera.
Gli spazi collettivi sono collocati al piano terra, in diretta relazione con la corte, e al quarto piano in modo tale da poter sfruttare l’affaccio sul tetto giardino presente lungo le maniche nord e sud.



G03 - Abitare