MENU

AAA2015 Risultati: Bari




I vincitori

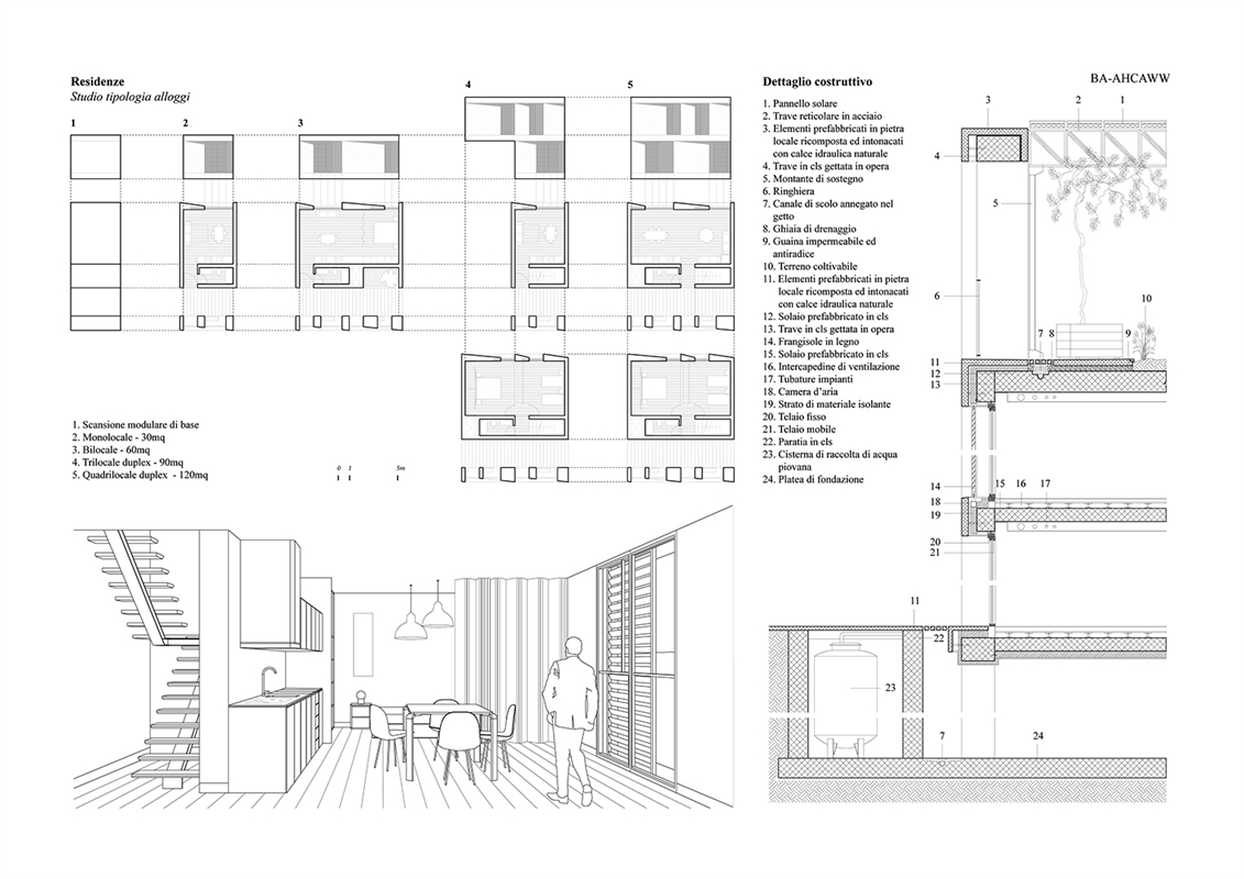
Primo classificato: BA-AHCAWW M21 Società contadina modernizzata
Pietro Colonna (capogruppo), Francesco Ferrante, Giuseppe Davide Vulpio.

Secondo classificato: BA-TS1TZL /pe·da·gò·gi·co/ Breviario dell’abitare cooperativo
Claudia Cosentino (capogruppo), Benedetta Caprotti, Stefania Cupillari, Dario Felice, Eleonora Giannini, Salvatore Grassi, Annalisa Lugli, Giorgio Andrea Mazzola, Lorenzo Nofroni, Stefano Privitera, Antonio Carmelo Rizzo, Marco Testa, Marco Viaggiano, Andrea Vivera.

Terzo classificato: BA-RY5ADD Entropia Urbana
Gilda Antonello (capogruppo), Marco Russo, Stefania Viola, Aleksandra Djordjevic.

Quarto classificato | Menzione: BA-MEDU4W Inter-stare: abitare tra costruito e campagna
Martina Ottaviano (capogruppo), Marcello Belviso, Tuan Triggiani, Maria Giuseppina Fioriello.

Quinto classificato | Menzione: BA-ROC59G Oltremare
Gaspare Oliva (capogruppo), Paolo De Michele, Vicenzo Faticati.

Menzione: BA-0RV2OR Parlascio
Sossio De Vita (capogruppo), Francesco Saverio Cacciapuoti, Luigi Cacciapuoti.



AAA2015 Bari: graduatoria

Primo classificato: M21 Società contadina modernizzata



Il progetto M21 Società contadina modernizzata, identificato dal codice BA-AHCAWW, si aggiudica il Primo premio del concorso AAA architetticercasi™ 2015 per l'area di Bari.



Secondo classificato: /pe·da·gò·gi·co/ Breviario dell’abitare cooperativo



Il progetto /pe·da·gò·gi·co/ Breviario dell’abitare cooperativo, identificato dal codice BA-TS1TZL, si aggiudica il Secondo premio del concorso AAA architetticercasi™ 2015 per l'area di Bari.



Terzo classificato: Entropia Urbana



Il progetto Entropia Urbana, identificato dal codice BA-RY5ADD, si aggiudica il Terzo premio del concorso AAA architetticercasi™ 2015 per l'area di Bari.



Quarto classificato (menzione): Inter-stare: abitare tra costruito e campagna



Il progetto Inter-stare: abitare tra costruito e campagna, identificato dal codice BA-MEDU4W, è risultato quarto alla conclusione dei lavori di giuria del concorso AAA architetticercasi™ 2015 per l'area di Bari.



Quinto classificato (menzione): OLTREMARE



Il progetto OLTREMARE, identificato dal codice BA-ROC59G, è risultato quinto alla conclusione dei lavori di giuria del concorso AAA architetticercasi™ 2015 per l'area di Bari.



Menzione: PARLASCIO



Il progetto PARLASCIO, identificato dal codice BA-0RV2OR, riceve una menzione speciale della giuria.